
Наша компания предлагает пластиковые окна и двери из профильных систем REHAU.
Обширная программа систем REHAU способна удовлетворить пожелания даже самого взыскательного заказчика.


Особенностями этой системы является традиционная глубина 60 мм, но эффект дополнительного энергосбережения создают 4-х камерная система профиля. Безупречный внешний вид, эргономичные формы, цвет, не меняющийся с годами, а также широкая гамма цветовых решений позволяет подобрать окно к любому интерьеру. Окно на основе профиля THERMO-Design оптимально подходят для любых климатических зон нашей страны.
С окнами THERMO-Design Вы получаете больше тепла за меньшие деньги! Комфорт, тепло, тишина доступны каждому.

Основные системные характеристики:
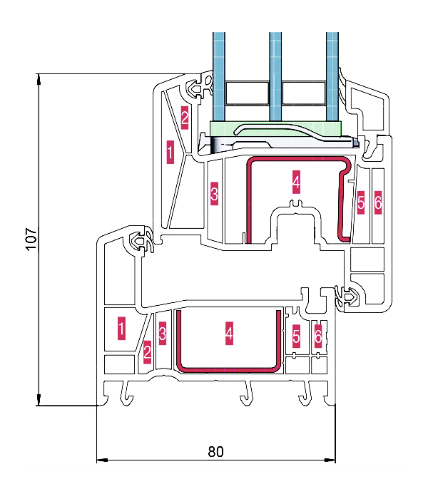
Системная глубина 60 мм и четырёх (трёх) - камерное строение профилей THERMO-Design в сочетании с правильно подобранным остеклением обеспечивают необходимый уровень тепло- и шумоизоляции.
Высококачественное двухконтурное уплотнение по притворам позволяет достичь высоких значений по воздухо- и водонепроницаемости.
Современный дизайн профилей: оптимальное сочетание радиусов (R2) и наклона (20°) лицевых поверхностей придаёт законченность формам и создаёт ощущение гармонии.
Смещенные лицевые поверхности коробки и створки определяют классический тип оконной системы.
Гладкая, долговечная, легкая в уходе поверхность профилей благодаря производственным Know-How и проверенной временем рецептуре материала RAU-PVC.
Долговечность не менее 60 условных лет эксплуатации

Новая пятикамерная система GRAZIO – уникальное изобретение REHAU, сочетающее в себе изящество формы и исключительные теплозащитные свойства.
Дополнение профиля двух лепестковым уплотнением и стеклопакетом шириной до 41 мм позволяет окну выдерживать перепады температур до 60 градусов без промерзания и образования конденсата. Климат в доме больше не будет зависеть от погоды на улице: пыль, вода и ветер останутся снаружи.
Профиль GRAZIO спроектирован так, чтобы обеспечить абсолютную тишину в доме даже при условии его расположения вблизи оживленной автострады. Окно можно оснастить усиленной взломозащитной фурнитурой, препятствующей незаконному проникновению в помещение.
Элегантный внешний вид, идеальная гладкость, богатый выбор форм, фактур и цветов — все это Rehau GRAZIO. Он подарит вашему дому уютную индивидуальность, надолго сохранив свою внешнюю привлекательность и функциональность.

Область применения:
Система REHAU GRAZIO предназначена для изготовления окон и балконных дверей и подходит как для индивидуального, так и для объектного строительства. В зависимости от потребностей заказчика, профиль может поставляться в традиционном белом исполнении или декорированным специальными плёнками в различных цветах, в том числе повторяющие структуру дерева.

Ноу-хау технического решения DELIGHT-Design дает возможность сократить высоту профильной конструкции и впустить в помещение на 10% больше света по сравнению с обычными окнами! А это означает больше радости и хорошего самочувствия!
Утонченный, изящный дизайн окон DELIGHT-Design удачно гармонирует с их способностью надежно беречь тепло даже в сильные морозы, а это значит, что Вам не придется «отапливать улицу» за свои деньги.
Особенную изысканность окнам придают фигурная створка и декоративный штапик с изящным рельефом.


Основные системные характеристики:
Системная глубина/число камер: 70 мм / 5 камер
Исключительно высокая теплозащита: Rопр. = 0,94 м²°С/Вт
Взломобезопасность: установка усиленных приборов запирания благодаря смещению оси приборного паза на 13 мм
Воздухо - и водопроницаемость: надежная защита от сквозняков, пыли и воды благодаря особому двухлепестковому строению уплотнений притвора (нахлест уплотнений по 7/8 мм снаружи/внутри)
Поверхность: высококачественная, идеально гладкая, удобная для ухода
Дизайн: широкий спектр цветовых решений благодаря отделке декоративными пленками, повторяющим цвет и структуру ценных пород дерева.
Долговечность не менее 60 условных лет эксплуатации
Область применения:
Окна из профилей REHAU DELIGHT-Design применяются в высотном и частном загородном строительстве. Они подходят для строительства новых зданий и реконструкции существующих.
Оконная система DELIGHT-Design позволяет удовлетворить высокие требования по теплоизоляции, дизайну и естественному освещению.

Окна REHAU BRILLANT-Design давно заслужили популярность среди самых требовательных покупателей, особо ценящих оригинальный дизайн наравне с новейшими технологиями энергосбережения. Идеально гладкая, блестящая поверхность профилей BRILLANT-Design – воплощение благородства и стиля без компромиссов.
Окна Brillant отличаются улучшенными теплозащитными и звукоизоляционными свойствами. Сочетание пяти камер 70-мм профиля, системы лепестковых уплотнений с широкой поверхностью примыкания и правильно подобранного стеклопакета толщиной до 41 мм — залог соответствия современным стандартам энергосбережения. Больше никакой пыли, сквозняков и воды — даже при ураганном ветре и сильном косом ливне. Влага, попавшая в зону фальца, сразу же выводится наружу благодаря его наклону к наружному краю окна.
Выбирая для своего дома Rehau Brillant, вы подчеркиваете индивидуальность его архитектуры и обеспечиваете себе неизменно комфортный микроклимат в любое время года.

Основные системные характеристики:
Системная глубина/число камер: 70 мм (80 мм)/5 (6) камер
Теплотехника: Rопр. = 0,90 м²°С/Вт
Взломобезопасность: установка усиленных приборов запирания благодаря смещению оси приборного паза на 13 мм
Воздухо - и водопроницаемость: надежная защита от сквозняков, пыли и воды благодаря особому двухлепестковому строению уплотнений притвора (нахлест уплотнений по 7/8 мм снаружи/внутри)
Воздухо - и водопроницаемость: надежная защита от сквозняков, пыли и воды благодаря особому двухлепестковому строению уплотнений притвора (нахлест уплотнений по 7/8 мм снаружи/внутри)
Поверхность: высококачественная, идеально гладкая, удобная для ухода
Область применения:
Окна из профилей REHAU BRILLANT-Design станут прекрасным выбором для нового строительства, реконструируемых объектов, а также для домов с минимальным потреблением энергии. Они дают возможность эксклюзивного дизайна с использованием широчайшего выбора цветов и форм. Система BRILLANT-Design используется для изготовления окон и балконных дверей.

INTELIO 80 – это шестикамерная профильная система умного комфорта, которая позволит создать в доме оптимальный микроклимат и максимально повысить уровень шумоизоляции. Чтобы Вас и Ваших близких не отвлекал посторонний шум и не тревожил дискомфорт от непогоды за окном, и вы могли полностью посвятить себя любимым занятиям: будь то настольные игры или здоровый сон, инженеры компании REHAU создали новую профильную систему INTELIO 80.
Система REHAU INTELIO 80 предоставляет широкую возможность интеграции более мощных стеклопакетов, что значимо уменьшает теплопотери зимой и поступления излишков солнечного тепла летом. Окна INTELIO 80 снизят затраты на отопление, и, что особенно важно, поддержат благоприятный баланс температур внутри помещения при больших площадях остекления.


Основные системные характеристики:
Системная глубина/число камер: 80 мм / 6 камер
Теплотехника: Rопр. = 0,98-0,99 м²°С/Вт
Взломобезопасность: до класса 3
Поверхность: идеально гладкая, удобная для ухода, исключительно стойкая к старению и изменению цвета
Дизайн: два варианта дизайна створки – традиционным (скошенным) наплавом со стороны улицы или с фигурным с двух сторон.
Область применения:
Система INTELIO 80 широко используется в высотном и малоэтажном строительстве. На базе этой профильной системы производятся распашные, поворотно-откидные, раздвижные и подъемно-раздвижные окна. Благодаря высоким показателям теплоизоляции система INTELIO 80 успешно применяется для производства балконных дверей. А разнообразие решений цветовой палитры профиля позволяет удовлетворить самые взыскательные требования клиентов.
Компания «Мир Окон» дорожит своей репутацией и полностью несет ответственность за качество каждого окна, поэтому очень взвешенно подходит к выбору комплектующих для своей продукции. Для производства окон используются только проверенные материалы.

МЫ РЕКОМЕНДУЕМ:
1. Немецкий профиль REHAU.
Профиль - некая конструкция, которая состоит из полостей, разделенных перегородками (ребрами жесткости) и обеспечивающих тепло- и шумозащиту. Большее количество таких полостей способствует лучшему сохранению тепла. Наша компания предлагает окна из профилей REHAU.
REHAU – бренд, который известен не только строителям, но и производителям автомобилей, бытовой техники, а также работникам космической отрасли.
Пластиковые окна REHAU завоевали потребительский рынок оконных технологий более чем в 50 странах мира. Обладая безупречными техническими характеристиками при достаточно доступной стоимости, эти качественные немецкие окна по праву стали фаворитами в процессе остекление всех видов зданий и помещений.

2. Качественный стеклопакет
Стеклопакет – это один из самых важных элементов окна. Именно от него в большей мере зависит, насколько тепло, тихо и комфортно будет в помещении.
Стеклопакет состоит из двух, трех или более листов стекла, герметично соединенные рамой по периметру. Полости, которые образуются между стеклами, заполняются воздухом или инертным газом, что препятствует запотеванию стекол и образованию на них конденсата.
Мы используем только качественное стекло. Все стандартные стеклопакеты производятся с использованием высококачественного стекла марки М-1 ГОСТ 111-2001 от мировых лидеров – компании Guardian (США) и AGC (Япония).
Во всех стеклопакетах по умолчанию используется дистанционная рамка из жесткого поливинилхлорида. Терморамка Warmex Termal обеспечивает теплый контур стеклопакета (максимальную защиту в месте, в котором это больше всего необходимо).
У нас вы можете выбрать стеклопакет в зависимости от своих потребностей. Стеклопакеты делятся на несколько видов, в зависимости от количества стёкол и камер, а также в зависимости от характеристик используемых стёкол:
Стандартный одно или двухкамерный стеклопакет. Однокамерный стеклопакет состоит из 2-х стёкол и одной воздушной камеры между ними. Используется обычно для остекления балконов и лоджий, т.е. в помещениях, где нет необходимости соблюдать определённый температурный режим. Это самый бюджетный вариант. Двухкамерный стеклопакет состоит из 3-х стёкол и двух воздушных камер между ними. Имеет высокие показатели по тепло-и шумоизоляции и оптимально подходит для остекления квартир и коттеджей.

Тонированный стеклопакет. Тонирование стеклопакетов обеспечивает солнцезащиту ограничивая прохождение УФ-лучей. Для производства тонированных стеклопакетов могут применяться как специальные цветные и зеркальные пленки, так и стекло, тонированное в массе.

Энергосберегающий стеклопакет. Состоит из обычного и энергосберегающего стекол толщиной 4 мм. Энергосберегающее стекло TOP N японского производителя AGC получают путем электромагнитного напыления в вакууме частиц оксидов металлов. Стекло равномерно покрывается теплосберегающим слоем, который отражает внутрь помещения тепло от отопительных приборов. Энергосберегающее стекло устанавливается в стеклопакете со стороны комнаты. Рекомендуются для установки в помещения, окна которых выходят на северную сторону, в помещения с большой площадью остекления, коттеджи.

Мультифункциональный стеклопакет. Мультифункциональное стекло японского производства AGC за счет покрытия Energy Light удерживает тепло внутри помещения зимой и отражает избыточную солнечную энергию летом. Обеспечивает комфортный микроклимат в помещении круглый год. Важно, что дневной свет поступает в комнату в полном объеме. Мультифункциональное стекло обладает лёгким зеркальным эффектом. Устанавливается в стеклопакете со стороны улицы. Рекомендуется для установки в помещения, окна которых выходят на южную/северную сторону.

Противоударный стеклопакет. Производиться с применением стекла «триплекс».
Стекло «триплекс» – это многослойное безопасное стекло, которое состоит из двух листов стекла и пленки между ними.
Это стекло обладает высокой прочностью и его практически невозможно выбить с целью проникновения внутрь помещения, что создаёт серьёзное препятствие на пути взломщиков. При разбивании плёнка между стёклами не дает разлетаться осколкам, что делает этот стеклопакет наиболее безопасным для активных детей, оберегая от возможных травм. При этом внешне это стекло невозможно отличить от обычного. Применение стекол «триплекс» также значительно повышает шумозащитные свойства стеклопакета.
Противоударные стеклопакеты рекомендуются для установки в помещения, расположенные на первых этажах, и в коттеджи.

3. Немецкая фурнитура Siegenia
Фурнитура стандартного окна не ограничивается ручками, петлями и замками. Она включает больше ста элементов, от которых зависит функциональность, надежность и долговечность конструкции.
Наша компания использует немецкую фурнитуру Siegenia – это цельнолитые изделия высокого качества, которые не допустят деформации окна. Модели ориентированы на 20–25 тысяч циклов открывания и закрывания.
Особенность продукции бренда – разнообразие систем безопасности и возможность дооснащения. Вы можете сами выбрать, какие механизмы будут установлены.
Производитель предлагает:
Противовзломные комплекты. Монтируются на углах створки и защищают от воздействия силы (класс WK1).
Дополнительные защитные элементы. Устанавливаются на всю конструкцию и гарантируют защиту от действия инструментами – плоскогубцами, отверткой (класс WK2).
Вся фурнитура обладает высокой коррозионной стойкостью. Благодаря нескольким вариантам цветового оформления системы не нарушат дизайн-концепцию интерьера. Их можно интегрировать в любые конструкции – как классические, так и нестандартной формы.
Механизмы отлично переносят условия повышенной влажности. Еще одно преимущество – простой монтаж.
Что умеет фурнитура Siegenia?

Дополнительный декор для ваших окон
ОКНА НЕСТАНДАРТНОЙ ФОРМЫ

Окна, непрямоугольной формы являются нестандартными (фигурными). Они используются для остекления сложных проемов в строениях с классической и современной архитектурой. Изготовление окон нестандартных форм - это индивидуальные проектные решения, реализация которых определяется высоким уровнем производственных возможностей.
Профили REHAU позволяют создавать окна не только простой прямоугольной формы, но и фигурные: арочные, трапециевидные, треугольные, круглые. Благородство интерьера изысканно подчеркнут створки различного типа: элегантно закругленные, мягко скошенные, со смещённой или полусмещённой лицевой поверхностью.

ЦВЕТНЫЕ ОКНА
Окна REHAU бывают не только классическими белыми!
Вы можете так же выбрать окна в цветах натурального дерева, современных алюминиевых оттенках, или любого другого, представленного в нашей палитре.
ЛАМИНИРОВАННЫЕ ОКНА

Что такое ламинирование?
Ламинирование – это процесс покрытия поверхности ПВХ-профиля цветной многослойной пленкой. Данная пленка представляет собой сложное изделие толщиной в 200 микрон, нижний слой которой представляет собой гибкий и прочный слой ПВХ, верхний (толщина его – 50 микрон) – состоит из акрила. Данная плёнка может окрашиваться в различные цвета и оттенки, а также имитировать поверхность и фактуру различных материалов. Прозрачный слой защитит ламинированные изделия от внешних воздействий.

Виды ламинирования
Заказать ламинированные окна ПВХ можно в нескольких вариантах:
1. Наружная ламинация.
В таком случае внешняя сторона окна покрывается цветной плёнкой, а внутренняя – остаётся белой. Люди, проживающие в городах и желающие купить ламинированные окна ПВХ с внешней стороны окна, должны предварительно поинтересоваться, разрешено ли на их улице устанавливать изделия с ламинированным профилем (иногда из-за архитектурного решения улицы или квартала это может быть запрещено). Поэтому данный тип ламинации чаще всего заказывают владельцы загородных домов, коттеджей, заботясь о гармонии внешнего вида своего окна.
2. Внутренняя ламинация.
Плёнкой покрывается только профиль со стороны комнаты. Внешняя часть окна остается белой. Такое решение выбирают люди, для которых очень важно, чтобы цвет окна максимально подходил к интерьеру.
3. Двухсторонняя ламинация.
Плёнкой покрываются обе стороны профиля.
Что нужно обязательно знать о ламинации
Ламинирование – процесс дорогостоящий, материалы и оборудование для него стоят недешево, поэтому при заказе окон с цветным покрытием следует учитывать, что цена на ламинированные окна ПВХ подрастёт.
Ламинация – это еще и сложный производственный процесс, требующий времени. Цветное покрытие сохнет долго, необходимо дать профилю время «вылежаться» и только после этого можно приступать к изготовлению рамы окна. Так что не удивляйтесь, если срок производства окон ПВХ с ламинацией «вырастет». Данный факт говорит лишь о том, что производитель делает окна в соответствии с требованиями технологии.
Для ламинации окон мы используем только проверенные и качественные пленки. В нашем ассортименте более 50 пленок.
КРАШЕНЫЕ ОКНА

Мы можем изготовить окна из окрашенного пластика (окна в массе).Окраска производится в соответствии с каталогом RAL (более 200 цветов).Технология производства профиля в массе предполагает добавление в основной материал цветного пигмента, который окрашивает изделие по всей толщине. Профиль в массе не влияет на эксплуатационные характеристики окна и, в отличие от ламинированного профиля, имеет однородный цвет по всей толщине (при открывании створки не видны белые зазоры).

Просто выберите цвет – остальное мы сделаем сами от замера до установки
ОКНА С ЦВЕТНЫМИ СТЁКЛАМИ


Реализовать самые креативные идеи в дизайне интерьера помогут окна с цветными стеклами. Многообразие оттенков позволяет подобрать решение в полном соответствии с общим дизайном интерьера или органично вписывающееся в архитектурный замысел.
Цветные и зеркальные стекла все чаще применяются в современных стеклопакетах в качестве альтернативы обычным.
Технология получения стеклопакетов разного цвета заключается в тонировке соответствующими пленками в заводских условиях. Мы используем качественные материалы, устойчивые к воздействию климатических и механических нагрузок. Наши окна эффектно смотрятся в жилых домах и квартирах, выгодно отличаясь от обычных прозрачных конструкций. Это оптимальный вариант для кафе, ресторанов и объектов сферы развлечений.
Цветные стекла используют отнюдь не только из эстетических соображений: тонировка обладает защитой от ультрафиолета и позволяет защитить вас от яркого солнечного света и жары в течение дня. Кроме того, затемненные стекла выполняют функцию штор, маскируя вас от лишних глаз. В темное время суток, при включенном свете, вы по-прежнему под защитой тонировки – то есть скрыты от посторонних глаз с улицы.
Мы предлагаем широкую палитру оттенков цветного стекла, с помощью которого Вы сможете расставить яркие акценты при создании интерьера, придав своему дому индивидуальность и неповторимый облик.

ОКНА С ДЕКОРАТИВНОЙ РАСКЛАДКОЙ

Для того чтобы ваше окно выглядело стильно, имело свою неповторимую изюминку, легко и точно вписалось в интерьер, существуют различные способы декора. Одними из них являются декоративная раскладка окон. С помощью неё можно визуально разделить окно, имитировать рисунок, подчеркнуть вашу индивидуальность в интерьере.
Если вам надоели стандарты и стереотипы, и вы желаете украсить ваше жилье со вкусом, придать изысканности каждому элементу декора, окна с раскладками именно то, что вам нужно.
Наша компания предлагает три вида раскладок:
ФАЛЬШПЕРЕПЛЁТ
Наружная раскладка или по-другому фальшпереплёт представляет собой декоративный накладной элемент (профиль), который крепится с внешней стороны на стеклопакет или стекло при помощи особой клейкой основы. Тем самым создается иллюзия переплета.
Он может быть установлен на уже готовые оконные конструкции, что очень удобно для тех, кто хочет привнести оригинальность в интерьер своего дома, но не намерен менять сами окна. Располагается преимущественно с внешней стороны, однако может устанавливаться и на внутреннюю, либо на обе стороны.
Преимущество пластиковых окон с фальшпереплётом в его универсальности, т.к. он подходит для любых типов и габаритов окон. А также в возможности ламинации ПВХ-планок аналогично тону окна.
Стандартная ширина — 25 мм, 27 мм, а также 36 мм и даже 45 мм. Может использоваться как альтернатива более массивному импосту, чтобы разделить конструкцию больших размеров на части. Помимо эстетичной привлекательности, повышает надежность и прочность изделия.

ШПРОСЫ
Шпросы представляют собой планки, помещаемые во внутреннее пространство стеклопакета еще на этапе его изготовления с фиксацией на рамке между стеклами. Материалом может выступать пластик или алюминий. Расположение шпросов внутри стеклопакета делает их устойчивыми к воздействию различных негативных факторов (температурным колебаниям, влаге, солнечному свету, механическим повреждениям), позволяя длительное время сохранять привлекательный внешний вид.
Между собой шпросы соединяются различными соединительными элементами, которые могут иметь Х, Т, Y и Г-образную форму. Благодаря этому внутри стеклопакета может развернуться творческая рука дизайнера: создавать различные сложные конструкции, сформировать какой-либо рисунок или просто подчеркнуть контур. Ширина шпросы – 8 мм, 18 мм, 25 мм. Диаметр зависит от толщины стеклопакета. По форме шпросы могут быть овальными, прямоугольными или фигурными.
Цвета шпрос могут быть самыми разнообразными, однако особенно эффектно смотрятся окна с белой и золотой раскладкой. Первые отлично подходят для белых пластиковых оконных конструкций, вторые — для профилей из древесины или ламинированного «под дерево» пластика.

Варианты декоративной раскладки внутри стеклопакета:

ШПРОСЫ С ВЕНЗЕЛЯМИ
Декоративные элементы внутри стеклопакета – отличное дизайнерское решение, которое сделает ваши окна индивидуальными. Шпросы сами по себе выглядят изыскано и престижно, а если они украшены затейливым, фигурным элементом, то окно превращается практически в произведение искусства.
Шпросы с декоративными вензелями:
Сделают ваш дом неповторимым. Несколько видов вензелей и множество вариантов декоративной раскладки шпрос, сделают экстерьер и интерьер дома действительно уникальными. Особенно эффектно будут выглядеть цветные ламинированные окна вашего коттеджа с подобранным именно для вас цветом и формой вензеля.
Прослужат также долго, как и обычные окна, поскольку декоративная раскладка устанавливается внутри стеклопакета, поэтому никаким образом не влияет на удобство эксплуатации окна.

Наша компания предлагает Вашему вниманию 23 варианта декоративных раскладок с вензелями:

